面积不大,也能“装”得下全年龄人群的快乐
湖北·咸宁香吾山脚下
一座3000㎡的老商场旧仓华韵30天改造
1000㎡无动力运动区+2000㎡数字运动区(二期开发中)
却把4-25岁年龄群体一次“打包带走”
一、设计理念:精准拿捏差异化市场需求
重构咸宁娱乐新生态
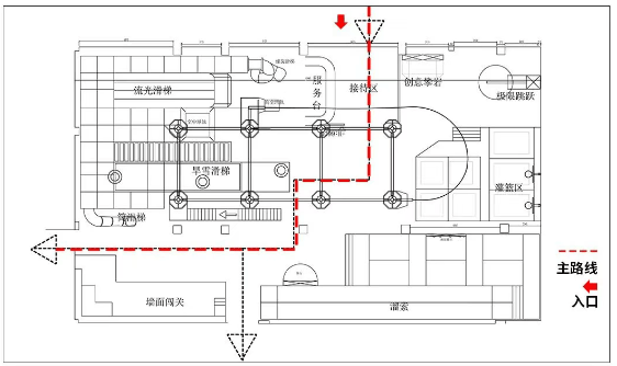
项目突破传统潮玩馆单一客群定位,以 “全龄共享、动静分区” 为核心理念,科学规划空间动线。
1、入口即视觉焦点:全息互动艺术空间作为流量磁极
2、环形动线设计:避免客流死角,延长停留时间
二、项目效果设计
“效果图设计”是衡量一个项目优秀与否的一个重要节点,也是最空间设计构思后最直观的表现形式。设计师在这个环节就需要从二维空间思维向三维空间思维转变,并从“结构,色彩,灯光”等多个环节进行全方位的设计。
效果图
三、为什么敢做“小”?因为我们把「小」写成了「精」:
- 凌空探险、高空滑翔、梅花桩、信仰之跃是勇气与平衡感的试炼场,系上安全绳在高空漫步,适合追求刺激的青少年和年轻人
- 旱雪滑梯:彩虹速降 8 秒,尖叫分贝直接拉满。波浪滑梯造型独特,下滑过程中充满起伏的惊喜
- 智勇闯关赛道和墙面闯关设置了重重障碍,考验反应与协作
- 弹力迷宫在弹力十足的空间里穿梭探索,充满未知与乐趣。无论是小朋友还是年轻人都能玩得不亦乐乎
- 低空滑索专为小朋友设计,在安全范围内感受滑行的乐趣
- 创意攀岩墙则让每个玩家在攀爬中挑战自我极限
- 蹦床区可尽情释放活力,更有海绵球池全新体验
- 手工区则能让人静下心来享受创作 —— 无论是带娃家庭、同学结伴,还是独自来放松的年轻人,都能找到适合自己的玩法
项目虽不繁杂,却精准匹配了全龄段的运动偏好,让 “玩” 这件事打破年龄局限。
四、从设计到运营,华韵全程护航每一个潮玩运动馆
香吾山运动超乐场:哪怕一期只有1000㎡小而精的场地
也能通过科学规划,让项目区域有机融合
既照顾到青少年的冒险心,也满足年轻人的社交需求,
更让亲子家庭找到共玩的乐趣。
香吾山运动超乐场的落地
是华韵对 “全面积覆盖” 服务的又一次实践
从几百平方到上万平方全场景覆盖
深研不同面积场馆模型,精雕细琢最佳项目配置
无论是小而美的轻运动社交场
多功能复合型运动空间
还是沉浸式亲子运动乐园
让每一寸空间都能长出流量
面积可以小,体验从不打折
我们华韵深知,每个场地都有其独特性
重要的是结合需求把空间用好
哪怕只有几百个平方米的场地
没有冗余设计,却用扎实的项目组合
让每个走进来的人都能玩得尽兴
我们华韵也能从前期的客群定位
项目设计,到中期的落地施工
再到后期的运营建议
提供全流程服务


